Índice:
Diagramas de fusíveis, localização das caixas de fusíveis para Jaguar F-Type (X152; 2016-2017).

Substituindo fusíveis
Se o fusível de reposição estourar após a instalação, será necessário que a Concessionária / Oficina Autorizada verifique o sistema. A Jaguar recomenda-se que os proprietários não removam ou substituam os relés. É recomendável que você procure assistência qualificada em caso de falha do relé.
Atenção!
Sempre desligue o sistema de ignição e o circuito elétrico afetado antes de substituir um fusível.
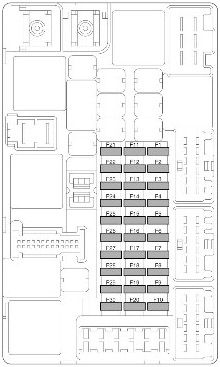
Compartimento dos passageiros
Bloco 1
Caixa de fusíveis do compartimento do passageiro, localizada no assoalho do lado do passageiro:

- Puxe para trás o tapete / carpete do assoalho para ver o painel de acesso
- Puxe para cima e remova o painel de acesso para visualizar a caixa de fusíveis



| № | A | Circuito | 
|---|---|---|
| 1 | 5 | Receptor de radiofrequência, Sensor de movimentação no interior, Sistema de monitoramento de pressão dos pneus (TPMS) | 
| 2 | - | - | 
| 3 | - | - | 
| 4 | 5 | Módulo do gateway CAN | 
| 5 | 5 | Sistema de freio antibloqueio (ABS), Sensor do ângulo de direção | 
| 6 | - | - | 
| 7 | - | - | 
| 8 | 30 | Assento do lado direito (2 elétricos) | 
| 9 | 5 | Freio de Estacionamento Elétrico (EPB) | 
| 10 | 5 | Controle de amortecimento adaptativo | 
| 11 | - | - | 
| 12 | 5 | Luzes de marcha à ré e inibidor antiofuscamento do retrovisor | 
| 13 | - | - | 
| 14 | 5 | Interruptor do pedal de freio | 
| 15 | 30 | Desembaçador traseiro | 
| 16 | - | - | 
| 17 | - | - | 
| 18 | - | - | 
| 19 | 5 | Módulo de controle do powertrain, módulo de controle eletrônico | 
| 20 | 10 | Volante aquecido | 
| 21 | 10 | Luz de desativação do airbag do passageiro (console superior) | 
| 22 | 5 | Módulo de controle da transmissão, diferencial traseiro, interruptor eletrônico da transmissão (sinal de ignição) | 
| 23 | 5 | Suprimento da caixa de fusíveis | 
| 24 | 5 | Farol de neblina traseiro direito | 
| 25 | 5 | Farol de neblina traseiro esquerdo | 
| 26 | - | - | 
| 27 | - | - | 
| 28 | 25 | Módulo da porta (lado direito) | 
| 29 | - | - | 
| 30 | - | - | 
| 31 | 5 | Sensor de chuva, sensores do controle de temperatura | 
| 32 | 25 | Módulo da porta (lado esquerdo) | 
| 33 | - | - | 
| 34 | 10 | Trava da tampa de combustível, porta-objetos, Trava da caixa de acondicionamento | 
| 35 | - | - | 
| 36 | 5 | Sonda de backup da bateria | 
| 37 | - | - | 
| 38 | 15 | Lavador da tela dianteira | 
| 39 | - | - | 
| 40 | - | - | 
| 41 | - | - | 
| 42 | 30 | Assento do lado esquerdo (1 elétrico) | 
| 43 | 10 | Escapamento ativo | 
| 44 | - | - | 
| 45 | 30 | Assento do lado direito (1 elétrico) | 
| 46 | 30 | Assento do lado esquerdo (2 elétricos) | 
| 47 | - | - | 
| 48 | - | - | 
| 49 | - | - | 
| 50 | - | - | 
| 51 | 5 | Interruptores do volante | 
| 52 | 20 | Tomada auxiliar (central) | 
| 53 | 20 | Tomada auxiliar / acendedor de cigarros (porta-objetos) | 
| 54 | - | - | 
| 55 | - | - | 
| 56 | 10 | Módulo de controle de proteção | 
| 57 | 10 | Luz do porta-luvas, luzes de leitura | 
| 58 | - | - | 
| 59 | 10 | Fechamento suave da porta (fechar e marcha à ré) | 
| 60 | 5 | Sensor de controle de ocupante | 
| 61 | 5 | Unidade da antena do imobilizador | 
| 62 | - | - | 
| 63 | - | - | 
| 64 | - | - | 
| 65 | - | - | 
| 66 | - | - | 
| 67 | - | - | 
| 68 | - | - | 
| 69 | - | - | 
Bloco 2
Caixa de fusíveis do compartimento do passageiro, localizada no lado esquerdo da coluna, abaixo do painel:
 Solte o painel de acesso para visualizar a caixa de fusíveis.






| № | A | Circuito | 
|---|---|---|
| 1 | 30 | Freio de Estacionamento Elétrico (EPB) (lado esquerdo) | 
| 2 | 5 | Tarifas de circulação de Cingapura | 
| 3 | - | - | 
| 4 | - | - | 
| 5 | 10 | Controle do painel de instrumentos, ventilador do painel de instrumentos | 
| 6 | 15 | Capota conversível (trava dianteira) | 
| 7 | - | - | 
| 8 | 5 | Módulo de veículo sem chave (lógico) | 
| 9 | 15 | Capota conversível (trava para baixo) | 
| 10 | 10 | Ar condicionado (A/C) | 
| 11 | 25 | Assento dianteiro aquecido | 
| 12 | 5 | Interruptor de energia do assento | 
| 13 | 10 | 2016: Módulo de controle do chassi (spoiler), interruptor do JaguarDrive 2017: Spoiler Traseiro Móvel (DRS), interruptor do controle JaguarDrive | 
| 14 | - | - | 
| 15 | 25 | Porta traseira | 
| 16 | 30 | Freio de Estacionamento Elétrico (EPB) (lado direito) | 
| 17 | 10 | Controle de amortecimento adaptativo, módulo de controle do chassi | 
| 18 | - | - | 
| 19 | 30 | Bomba de combustível | 
| 20 | - | - | 
| 21 | 10 | Câmera traseira, Farois, monitoramento de pontos cegos (BSM), Sensor de estacionamento (PDC), retrovisor interno | 
| 22 | 5 | Motor do farol do lado direito | 
| 23 | 5 | Motor do farol do lado esquerdo | 
| 24 | 5 | Nivelamento dos faróis | 
| 25 | 10 | Controle do painel de instrumentos, ventilador do painel de instrumentos | 
| 26 | 5 | Módulo do gateway | 
| 27 | - | - | 
| 28 | - | - | 
| 29 | 10 | Câmera traseira, Farois, monitoramento de pontos cegos (BSM), Sensor de estacionamento (PDC), retrovisor interno | 
| 30 | 5 | Modo normal (ou modo de transporte) | 
Compartimento do motor
Caixa de fusíveis do compartimento do motor esquerdo:



- Remova a tampa sob o capô no lado esquerdo.
- Prenda o clipe para soltar a tampa da caixa de fusíveis.   № A Circuito CAIXA DE FUSÍVEIS DO LADO ESQUERDO 1 5 Conector de diagnóstico. 2 20 Bomba de transferência do lavador. 3 - - 4 5 Monitor do motor de arranque. 5 25 Gerenciamento do motor (bobinas de ignição). 6 5 Gerenciamento do motor (sensores MAF). 7 5 Gerenciamento do motor (sensores). 8 10 Gerenciamento do motor (atuadores). 9 10 Gerenciamento do motor (motor de aceleração). 10 15 Gerenciamento do motor (regulagem de válvula variável). 11 20 Gerenciamento do motor (lado esquerdo do sensor de oxigênio). 12 20 Gerenciamento do motor (lado direito do sensor de oxigênio). 13 20 Gerenciamento do motor (sensor de oxigênio do catalisador). 14 10 Bomba d'água elétrica. 15 5 Válvula de escapamento ativo. 16 - - 17 5 Sistema de gerenciamento do motor. 18 30 Válvulas do sistema ABS (Anti-bloqueio de freio). 19 15 Interruptor eletrônico da transmissão, módulo de controle da transmissão (TCM). 20 30 Sistema com tração nas quatro rodas (AWD). 
Caixa de fusíveis do compartimento do motor direito:
Abra a tampa lateral e pressione os 2 clipes para soltar a tampa da caixa de fusíveis.






| № | A | Circuito | 
|---|---|---|
| 1 | 25 | Lavagem do farol. | 
| 2 | - | - | 
| 3 | 15 | Buzina. | 
| 4 | - | - | 
| 5 | - | - | 
| 6 | - | - | 
| 7 | - | - | 
| 8 | - | - | 
| 9 | - | - | 
| 10 | - | - | 
Compartimento de bagagem
Caixa de fusíveis do bagageiro. A caixa de fusíveis é acessada:



- (Somente Coupé). Reclinando o painel do assoalho do porta-malas e removendo o bloco de suporte do painel do assoalho.
- Removendo a tampa do compartimento esquerdo (bateria) do porta-malas.
- Removendo o revestimento do assoalho do porta-malas.
Diagrama de fusíveis



| № | A | Circuito | 
|---|---|---|
| 1 | 15 | Tel Touchscreen, Pinel de controle integrdo frontl | 
| 2 | 10 | mplificdor de áudio | 
| 3 | - | - | 
| 4 | 10 | Rádio digitl, sistem de nvegção, sintonizdor de televisão | 
| 5 | 15 | Unidde principl de áudio | 
| 6 | 15 | Pinel de entrd / síd de áudio / vídeo | 
| 7 | - | - | 
| 8 | - | - | 
| 9 | - | - | 
| 10 | - | - | 
| 11 | - | - | 
| 12 | - | - | 
| 13 | - | - | 
| 14 | - | - | 
| 15 | 15 | Pinel de controle integrdo frontl (quecimento e ventilção) | 
| 16 | - | - |